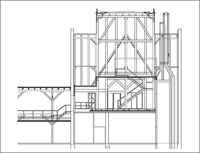
Ausbau Ostturm Seewetteramt, Hamburg
Bauherr:
Bundesrepublik Deutschland
Nutzfläche:
300 m²
Leistung:
Leistungsphase 3 - 9
Kurzbeschreibung:
Ausbau des 4. OG des Ostturmes der denkmalgeschützten ehemaligen Seefahrtsschule oberhalb der Landungsbrücken aus dem Ende des 19. Jh., heute genutzt vom Deutschen Wetterdienst.
Einbau von Büro- und Besprechungsräumen mit Medientechnik sowie von Fluchtwegen unter Berücksichtigung des Brandschutzgutachtens.

Querschnitt









